Een heerlijk licht en ruim opgezet appartement van ca. 81 m² op de tweede (top)verdieping met mogelijkheid tot het realiseren van een dakopbouw, twee slaapkamers van goed formaat, een sfeervolle woonkamer en een zonnig balkon op het zuidoosten, ideaal om van de ochtendzon te genieten.
De woning is gelegen aan de Cederstraat, in de geliefde Bomenbuurt. Deze wijk staat bekend om haar levendige karakter en centrale ligging binnen Den Haag. Op korte afstand bevindt zich de populaire Fahrenheitstraat, met een gevarieerd aanbod aan winkels, gezellige koffiezaken en diverse eetgelegenheden. Zowel het centrum van Den Haag als het strand zijn binnen circa 10 tot 15 minuten fietsen bereikbaar.
De bereikbaarheid is zonder meer goed. In de directe omgeving bevinden zich haltes van tramlijnen 3 en 12, terwijl ook buslijnen 21 en 24 op loopafstand liggen. Daarnaast zijn de uitvalswegen richting de A4 en A12 eenvoudig en snel te bereiken.
Ook op het gebied van voorzieningen is de ligging ideaal: in de nabije omgeving zijn diverse scholen en sportfaciliteiten aanwezig.
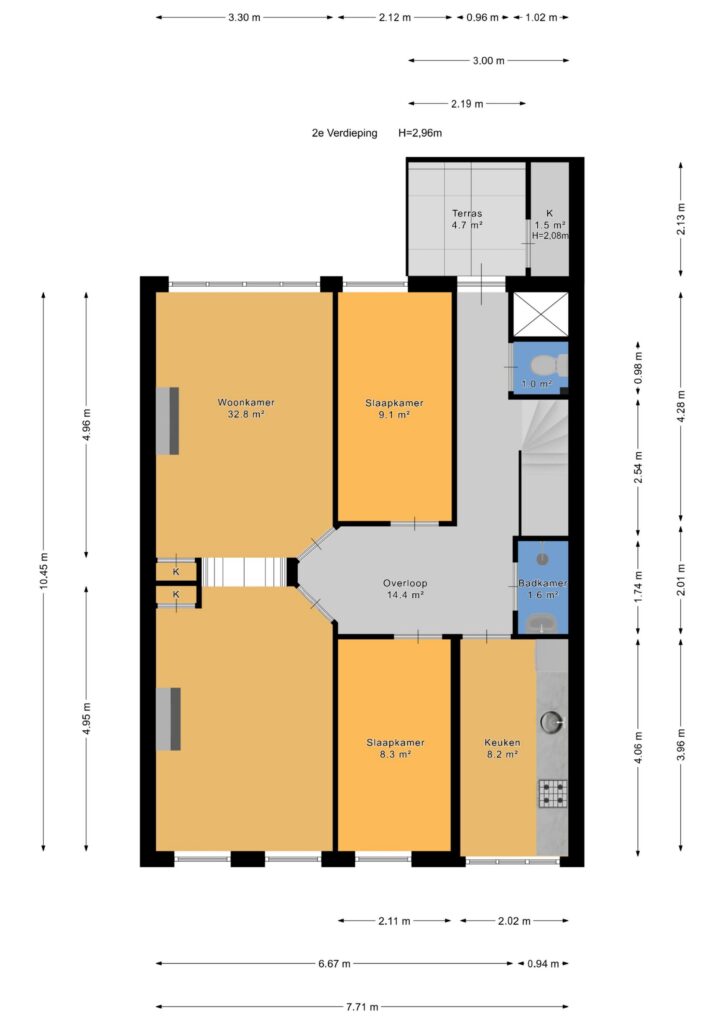
Indeling
Via het open portiek bereik je de eerste verdieping, waar zich de entree bevindt met meterkast en trap naar de tweede verdieping.
Op de tweede verdieping kom je uit op een ruime, lichte overloop met dakraam. De woning beschikt over een functionele keuken, een slaapkamer aan de voorzijde, een ruime woonkamer, een tweede slaapkamer aan de achterzijde, een compacte badkamer, separaat toilet en een fijn balkon met vernieuwd zink.
Dakopbouw
Volgens het omgevingsplan is het toegestaan, onder voorbehoud van de benodigde vergunningen en toestemming van de VvE, een dakopbouw te realiseren. Hiermee kan circa 50 m² extra woonoppervlakte worden gecreëerd.
Bijzonderheden:
– Eigen grond;
– Bouwjaar 1922 (volgens BAG);
– Actieve VvE, bijdrage € 90,- per maand;
– 1/3e aandeel in de gemeenschap;
– Energielabel G;
– Aan de achterzijde van de woning zijn onderhoudsvriendelijke kunststof kozijnen met dubbel glas aanwezig. De voorzijde beschikt over houten kozijnen met enkel glas, evenals een houten balkondeur;
– De houten kozijnen aan de voorzijde en de balkondeur zullen op termijn aandacht vragen. Volgens de VvE-notulen van 8 mei 2025 is aangegeven dat vervanging op termijn wenselijk is. Deze kosten komen voor rekening van de nieuwe eigenaar;
– Algemene verkoopvoorwaarden Kesp makelaars & taxateurs B.V. zijn van toepassing;
– ‘As is, where is’ clausule is van toepassing;
– Ouderdoms-/materialen- en niet bewoningsclausule worden in de NVM koopakte opgenomen;
– Biedingen welke worden gedaan zonder de woning te hebben bezichtigd, worden mede vanwege de Wet WWFT, niet in behandeling genomen;
– Notariskeuze voorbehouden aan verkoper, Notariaat Van Sprundel;
– Oplevering in overleg
Interesse in deze woning? Schakel direct uw eigen NVM-aankoopmakelaar in. Uw NVM-aankoopmakelaar komt op voor uw belang en bespaart u tijd, geld en zorgen. Adressen van collega NVM-aankoopmakelaars in Haaglanden vindt u op Funda.nl

