Aan rustige straat gelegen parterre MET eerste verdieping gelegen aan de rand van het Statenkwartier met heerlijke beschutte en rustige tuin op het Oosten.
Met de Frederik Hendriklaan, de Keizerstraat en de Stevinstraat op loop- en fietsafstand is er in de directe omgeving aan winkels, supermarkten en gezellige horeca absoluut geen gebrek. Ook de havens, het strand en het Scheveningse bos liggen op loopafstand, alsmede Internationale Organisaties.
De bereikbaarheid is zonder meer goed te noemen: meerdere tram- en buslijnen stoppen vrijwel om de hoek. Met de auto rijdt men via de uitvalswegen in no-time de A4, A12, A13 of A44 op.
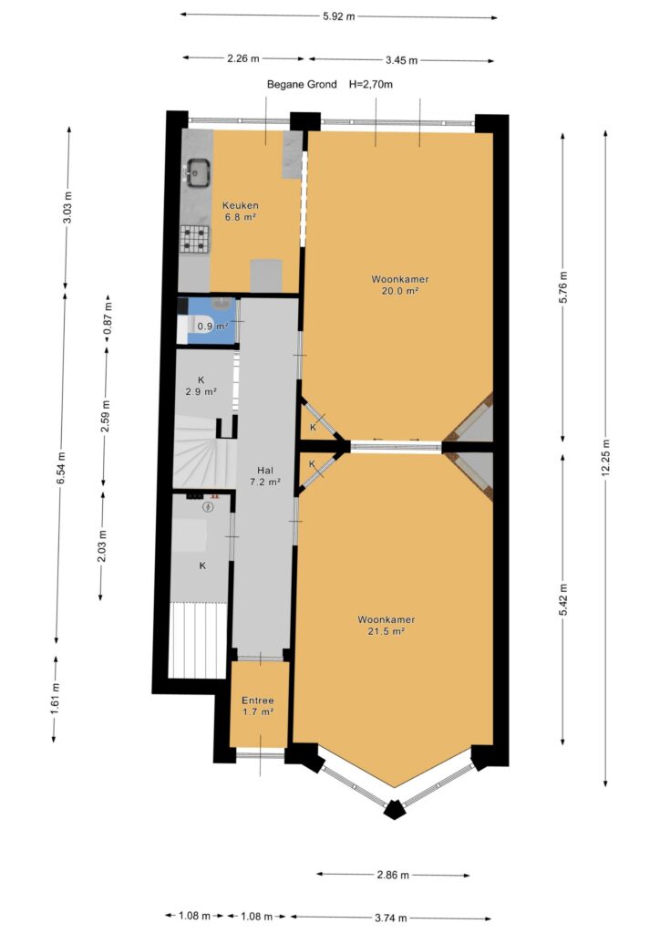
INDELING
Voortuin, voordeur, tochtportaal en gang met berging, meterkast, garderoberuimte en een separaat toilet. Vanuit de gang bereikt u de woonkamer en suite met de achterkamer. De kamers worden van elkaar gescheiden door en-suite-schuifdeuren met kastruimte. Aan de achterkamer zit ook de open keuken met de Cv-opstelplaats en via de openslaande deuren bereikt u de beschutte en rustige tuin, gelegen op het oosten.
Op de eerste verdieping zijn verder nog twee zijkamers (waarvan 1 met wasmachine aansluiting) en twee ruime slaapkamers aanwezig. En uiteraard nog een separaat, tweede toilet en een tussengelegen badkamer voorzien van een inloopdouche en dubbele wastafel.
Bijzonderheden
– Bouwjaar 1919 (volgens BAG);
– Energielabel C;
– Actieve VvE, bijdrage € 50 per maand;
– 1/2 aandeel in de gemeenschap;
– Grotendeels voorzien van dubbele beglazing;
– Gelegen op eeuwigdurend en afgekochte erfpacht;
– Algemene verkoopvoorwaarden van ons kantoor en ‘As is, where is’ clausule van toepassing;
– Ouderdoms-/materialen- en niet bewoningsclausule worden in de NVM koopakte opgenomen;
– Biedingen welke worden gedaan zonder de woning te hebben bezichtigd, worden mede vanwege de Wet WWFT, niet in behandeling genomen;
– Oplevering in overleg;
Interesse in deze woning? Schakel direct uw eigen NVM-aankoopmakelaar in. Uw NVM-aankoopmakelaar komt op voor uw belang en bespaart u tijd, geld en zorgen. Adressen van collega NVM-aankoopmakelaars in Haaglanden vindt u op Funda.nl



