Unieke kans voor wonen en werken aan huis!
Dit bijzondere object bestaat uit twee samengevoegde appartementsrechten en biedt een uitstekende mogelijkheid voor wie wonen en werken wil combineren. De parterre (circa 69 m²) wordt momenteel gebruikt als kantoorruimte, terwijl het dubbele bovenhuis (circa 130 m²) in gebruik is als woning.
De Laan van Meerdervoort is een van de meest geliefde lanen van Den Haag, met een brede opzet en groene middenbermen. In de directe omgeving vind je diverse winkels, speciaalzaken en horecagelegenheden, waaronder de levendige Fahrenheitstraat op korte afstand.
Voor ontspanning liggen het strand, de duinen en het Zuiderstrand op fietsafstand. Ook zijn er volop sportfaciliteiten, scholen en kinderopvang in de buurt, wat de wijk zeer geschikt maakt voor gezinnen.
De bereikbaarheid is uitstekend: een tramhalte ligt direct voor de deur met verbindingen richting Loosduinen, Zoetermeer, Den Haag Centraal en Den Haag Laan van NOI. Daarnaast zijn uitvalswegen eenvoudig bereikbaar.
Indeling
Begane grond
Entree met twee voordeuren: één voor de woning en één voor het kantoor. De tussenmuur is doorgebroken, waardoor een goede hal is ontstaan. De kantoorruimte beschikt over een nette keuken, een separaat toilet en openslaande deuren naar de zonnige achtertuin. De tuin is tevens bereikbaar via de keuken.
Eerste verdieping
Overloop met toilet en toegang tot de royale woonkeuken aan de achterzijde en de woonkamer aan de voorzijde. Het voormalige balkon is bij de woning betrokken, wat heeft geresulteerd in een prachtige, ruime woonkeuken. Deze is voorzien van comfortabele vloerverwarming en diverse inbouwapparatuur.
De woonkamer aan de voorzijde beschikt over een Frans balkon en biedt een fraai uitzicht over de Fahrenheitstraat en het groen langs de Laan van Meerdervoort.
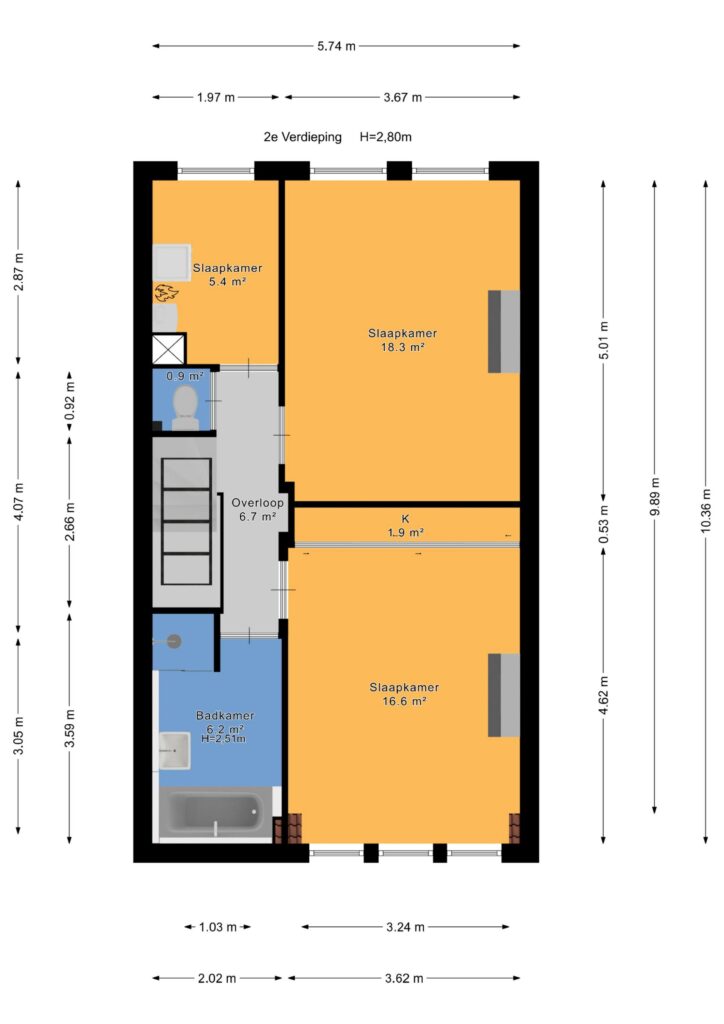
Tweede verdieping
Overloop, separaat toilet, drie slaapkamers en een ruime badkamer met fraai tegelwerk. De royale slaapkamer aan de achterzijde is voorzien van airconditioning.
Beide appartementsrechten beschikken over eigen meters en een eigen cv-ketel, wat zorgt voor een duidelijke scheiding en extra gebruiksgemak. De parterre heeft bovendien een uitstekend energielabel A, terwijl de bovenwoning beschikt over een keurig energielabel C.
Volgens het bestemmingsplan is het toegestaan om de parterre ook als woning te gebruiken. De parterre wordt echter verkocht in de huidige staat, zijnde in gebruik als kantoorruimte.
Bijzonderheden
– Eigen grond;
– Bouwjaar 1913 (volgens BAG);
– Twee appartementsrechten;
– Object wordt aangeboden in huidige staat in huidig gebruik;
– Uitstekende staat van onderhoud, dak en kozijnen vernieuwd;
– Unieke kans voor wonen en werken aan huis;
– Ondanks de uitstekende staat van onderhoud zullen de ouderdoms- en materialenclausule worden opgenomen in de NVM koopakte;
– Biedingen welke worden gedaan zonder de woning te hebben gezien, worden mede vanwege de Wet WWFT, niet in behandeling genomen;
– Oplevering medio november 2026.
Deze verkoopbeschrijving is met zorg samengesteld. Alle tekst is echter informatief en bedoeld als uitnodiging om over eventuele aankoop in gesprek te komen. U kunt aan deze verkoop-beschrijving geen rechten ontlenen.
Interesse in deze woning? Schakel direct uw eigen NVM-aankoopmakelaar in. Uw NVM-aankoopmakelaar komt op voor uw belang en bespaart u tijd, geld en zorgen. Adressen van collega NVM-aankoopmakelaars in Haaglanden vindt u op Funda.nl



