Keurig verzorgd tweekamerappartement van circa 54 m², met een ruime slaapkamer en een zonnig balkon gelegen op het zuidoosten.
De woning is gelegen in het bruisende hart van Scheveningen. Met de vernieuwde boulevard, Palace Promenade en de winkelstraten Stevinstraat en Gentsestraat op loopafstand is er een groot aanbod aan diverse winkels en horeca. In de maanden maart tot en met oktober zijn ook de beachclubs weer geopend.
Ook voor recreatie is er volop aanbod in de directe omgeving, zoals Pathé Scheveningen, De Pier en Holland Casino, allemaal op steenworp afstand.
De woning is goed bereikbaar met zowel de auto als het openbaar vervoer en ligt op fietsafstand van het centrum van Den Haag. Via de Badhuisweg en de Raamweg zijn de A4 en A12 binnen circa 10 minuten bereikbaar. De bus- en tramhalte bevindt zich op steenworp afstand van de woning.
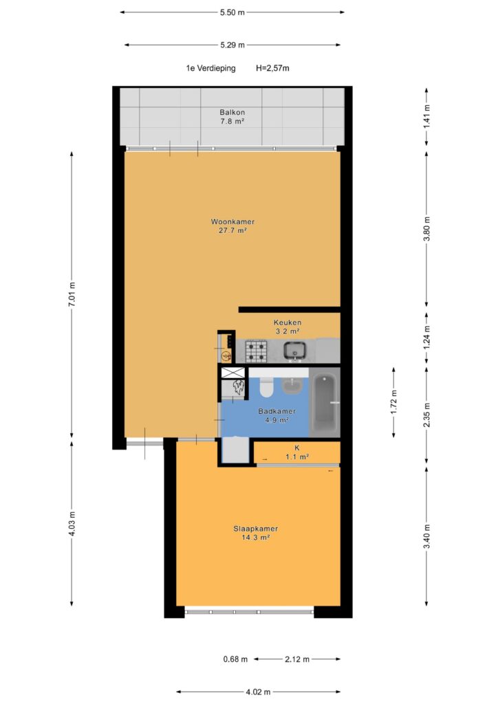
Indeling
Entree via het gesloten portiek, met trapopgang naar de eerste verdieping en toegang tot de woning. Bij binnenkomst valt direct de prettige lichtinval op. De ruime woonkamer staat in open verbinding met de keuken en geeft via openslaande deuren toegang tot het woningbrede balkon.
De badkamer is ruim opgezet en voorzien van een bad-/douchecombinatie, toilet en wastafelmeubel. De slaapkamer heeft een zeer goed formaat en beschikt over een praktische inbouwkast.
Daarnaast is er in de onderbouw een separate berging aanwezig.
Bijzonderheden
– Bouwjaar 1977 (volgens BAG);
– Energielabel B;
– Voortdurend recht van erfpacht onder de voorwaarden Scheveningen;
– De huidige jaarlijkse canon bedraagt € 419,74 per jaar en dit betreft 10x de basis canon;
– Per 1 januari 2031 zal deze jaarlijkse canon worden verhoogd naar 12x de basiscanon = 12x € 41,97 = € 503,69;
– Per 1 januari 2032 zal het bedrag jaarlijks worden geïndexeerd;
– Actieve VvE, bijdrage € 185,48 per maand;
– Ouderdoms-/materialen- en niet bewoningsclausule worden in de NVM koopakte opgenomen;
– Biedingen welke worden gedaan zonder de woning te hebben bezichtigd, worden mede vanwege de Wet WWFT, niet in behandeling genomen;
– Oplevering in overleg, kan per direct.
Interesse in deze woning? Schakel direct uw eigen NVM-aankoopmakelaar in. Uw NVM-aankoopmakelaar komt op voor uw belang en bespaart u tijd, geld en zorgen. Adressen van collega NVM-aankoopmakelaars in Haaglanden vindt u op Funda.nl

